0

Můj katalog

Tyto nemovitosti jste si vybral/a do svého katalogu. Budete-li mít zájem, můžete jednotlivé položky řadit dle potřeby, odebrat z katalogu nebo naopak přidat z dříve prohlížených položek. Stažení katalogu dokončíte stisknutím tlačítka „stáhnout můj katalog“.

Vybrané nemovitosti

bytová jednotka projekt plocha karta nemovitosti transakce odebrat z katalogu

stáhnout katalog | stáhnout katalog / ceník

Mělnická 12 - Komerční prostory A01.101

1.PP

dispozice plocha B/L/T transakce cena bez DPH cena celkem do katalogu
nebytový prostor
95.7 m2
prodej
8 790 000 CZK
8 790 000 CZK
A01.101
poptat nemovitost
kk - kuchyňský kout | B - balkón | L - lodžie | T - terasa
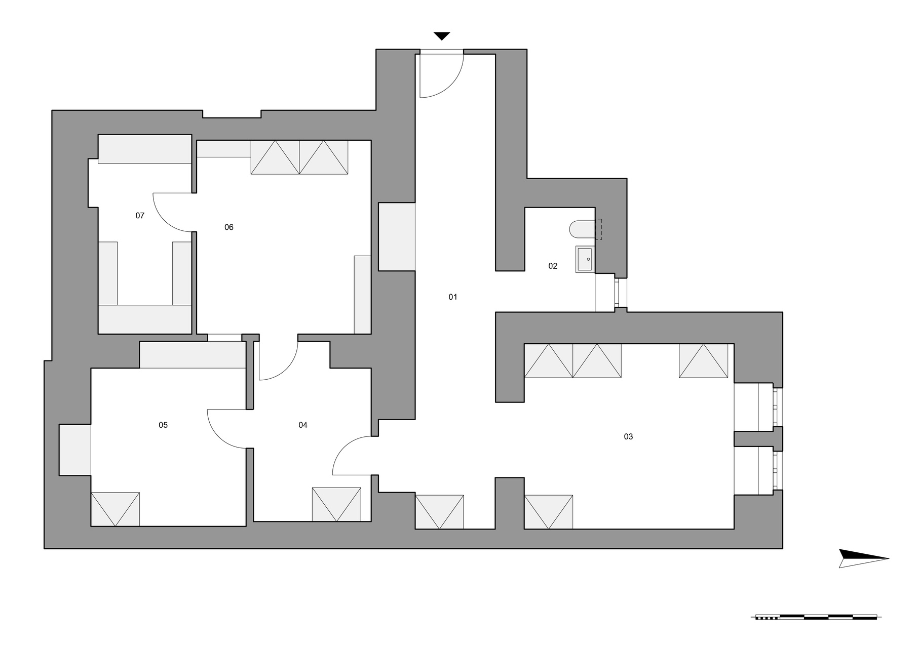
obytná plocha 95.7 m2
01 chodba 19.1 m2
02 wc 3.6 m2
03 kancelář 17 m2
04 komerční prostor 8.5 m2
05 komerční prostor 11.6 m2
06 komerční prostor 14.8 m2
07 sklad 7.7 m2
příčky, sloupy a šachty 13.4 m2
celková plocha 95.7 m2
garáže, sklepy, sklady
07 sklad A01.101

fotogalerie

Domluvit si schůzku či prohlídku

Potřebujete více informací o nemovitosti nebo si chcete sjednat prohlídku? Vyplňte formulář a my se vám obratem ozveme.

Vaše osobní údaje budou zpracovány podle Podmínek zpracování osobních údajů.


Generování PDF