0

My catalog

You have selected these properties for you catalogue. If interested, you can sort individual items as needed, take them out of the catalogue or add items viewed earlier. Complete downloading of the catalogue by clicking the button "Download my catalogue“.

Selected properties

flat residence area Card of properties transaction remove from the catalog

download catalog | Download catalogue / price list

Mělnická 12 - Komerční prostory A01.101

1.PP

disposition area B/L/T transaction VAT exclusive final price add to the catalogue
commercial premises
95.7 m2
sale
8 790 000 CZK
8 790 000 CZK
A01.101
ask for property
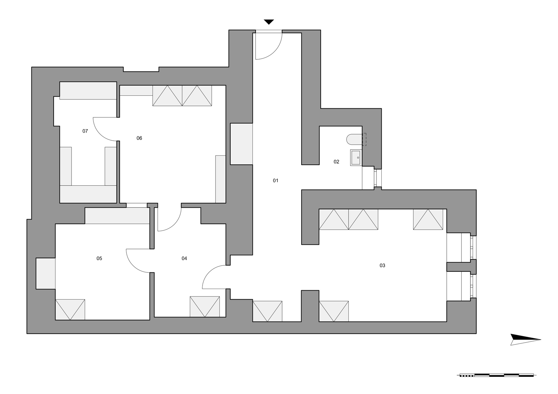
kk - Kitchen corner | B - balcony | L - lodge | T - terrace
living area 95.7 m2
01 Corridor 19.1 m2
02 WC 3.6 m2
03 Office 17 m2
04 commercial premises 8.5 m2
05 commercial premises 11.6 m2
06 commercial premises 14.8 m2
07 storage premises 7.7 m2
Partitions, pillars and shafts 13.4 m2
total area 95.7 m2
Garages, basements, storage premises
07 storage premises A01.101

Photo gallery

Cuntact Us

Do you need more information about the property or would you like to arrange a viewing? Fill out the form and we will get back to you shortly.

Your personal information will be processed according to the Privacy Policy .


Generate PDF